Parker Orchard Manor Villa | Fischer & Frichtel Homes
Our Home Designs

Orchard Manor Villa Collection

Parker Orchard Manor Villa

1.5-Story

4 Beds
3 Baths
2 Car Garage
2,590 sq ft

Available in these Communities

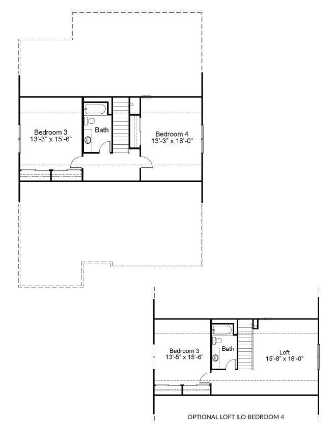
The Parker is 1.5 story home with an inviting living space and main floor master bedroom. This home features an open kitchen, breakfast area and living room, perfect for entertaining. Additional main floor features include an open study or dining room and a large laundry room. The master bedroom and bath include a walk-in closet, spacious linen closet and double bowl vanity. On the second floor you’ll find two large bedrooms and a full bath. Optional features include a finished lower level and second floor loft.

Parker First Floor
Parker Second Floor
Parker Optional Finished Lower Level
Follow Us!  
Ask
Kim
  Call   Text   Email