Fischer & Frichtel Homes | Fairfax Orchard Villa
Our Home Designs

Orchard Villa Collection

Fairfax Orchard Villa

1.5-Story

3 Beds
2.5 Baths
2,113 sq ft

Available in these Communities

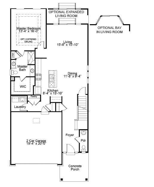
The Fairfax is a generously sized 1.5 story villa home with 3 bedrooms, 2.5 baths, a spacious open concept floor plan, a main floor master suite and laundry room. Two additional bedrooms, a large loft and bonus area are located on the second floor. Several enhancement options are available, including a screened porch, optional second floor master bedroom, expanded living room and a finished lower level.

Fairfax First Floor
Fairfax First Floor Options
Fairfax Second Floor
Fairfax Second Floor Options
Fairfax Optional Finished Lower Level
Follow Us!  
Ask
Kim
  Call   Text   Email